9,6

Op basis van
350 reviews

Bel ons

toggle navigation

toggle navigation
Woonhuis
verkocht onder voorbehoud
Van Soutelandelaan 21 'S-GRAVENHAGE

Aanbod / Woonhuis

Van Soutelandelaan 21, 2597 EV 'S-GRAVENHAGE

Van Soutelandelaan 21 'S-GRAVENHAGE
Location

Van Soutelandelaan 21, 2597 EV 'S-GRAVENHAGE

Vraagprijs

€ 1.200.000,- k.k.

€ 1.200.000,- p.m.

Kenmerken

Volledig kenmerken

Ligging aan rustige weg, in woonwijk, vrij uitzicht, beschutte ligging
Oppervlakte 189 m2
Inhoud 705 m3
Bouwjaar 1929
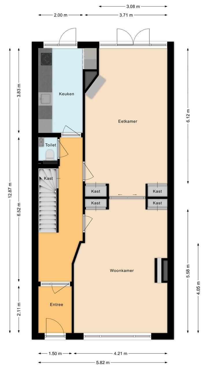
WOON EN GENIET in dit karakteristieke en royale herenhuis (ca. 189m2) met voortuin, riante achtertuin, balkon en zonnig terras, gelegen in het geliefde Benoordenhout. De begane grond beschikt over een ruime woon-eetkamer en suite en een moderne dichte keuken. De eerste verdieping biedt twee ruime slaapkamers, een achterzijkamer, een moderne badkamer en een balkon over de volle breedte, terwijl de tweede verdieping is ingedeeld met twee slaapkamers, een tweede badkamer en een riant terras. Gelegen in een rustige en groene woonomgeving nabij Landgoed Clingendael, het Haagse Bos en de winkels en horeca van de Van Hoytemastraat, met uitvalswegen, openbaar vervoer, strand en de Haagse binnenstad binnen handbereik.

Locatie:
Benoordenhout is een rustige wijk met een luxe en groen karakter. Het grootste deel van de wijk is ontwikkeld in de periode 1915 tot en met 1959. Scholen, crčches en volop speelgelegenheid in de directe omgeving. Het prachtige landgoed Clingendael, het Haagse Bos en Arendsdorp liggen op een steenworp afstand. Op diverse locaties in de wijk (Van Hoytemastraat, Willem Royaardsplein, Weissenbruchstraat) vind je een breed assortiment aan ambachtelijke speciaalzaken en kun je terecht voor je dagelijkse boodschappen. Ook vind je er leuke restaurants en barretjes. Gunstig gelegen ten opzichte van de internationale bedrijven, uitvalswegen, het openbaar vervoer en bovendien op fietsafstand van de Haagse binnenstad, strand & zee.

Indeling:
Via de verzorgde voortuin wordt de entree van de woning bereikt. Vestibule met een karakteristieke tochtdeur met glas-in-lood naar de ruime hal, voorzien van een toilet met vrijhangend toilet en fontein en een praktische vaste kast. Lichte en royale woon-eetkamer en suite met originele suifeseparatie met schuifdeuren met glas-in-lood en 4 vaste kasten en visgraat parketvloer met bies. De voorkamer heeft een fraaie erker met vrij uitzicht en schouw met gas-open haard, de achterkamer heeft openslaande deuren naar de riante achtertuin met stenen schuur. De dichte keuken is uitgevoerd met moderne onder- en bovenkasten, een composietstenen werkblad en diverse inbouwapparatuur: vaatwasser, 4-pits inductiekookplaat, afzuigkap, spoelbak, wijnkoelkast en een Siemens koffiezetapparaat. Vanuit de keuken is er toegang tot de achtertuin.

Eerste verdieping:
Overloop met toilet met vrijhangend toilet en fontein. Aan de achterzijde bevindt zich een achterzijkamer met toegang tot het balkon over de volle breedte van de woning. Daarnaast een ruime slaapkamer met vaste kast en openslaande deuren naar het balkon. De tussengelegen moderne badkamer is voorzien van een bad, inloopdouche, een dubbele wastafel in meubel en design radiator. Aan de voorzijde ligt een royale slaapkamer over de volle breedte met uitzicht over het groen.

Tweede verdieping:
Overloop met deur naar een riant terras en een vaste kast met opstelplaats voor de cv-combiketel. Aan de voorzijde bevindt zich een slaapkamer met erker en vrij uitzicht. Aan de achterzijde ligt een ruime tweede slaapkamer. Tevens is er een tweede moderne badkamer aanwezig, voorzien van een inloopdouche, wastafel in meubel en een aansluiting voor de wasmachine.

Bijzonderheden:
- Bouwjaar 1929
- Gelegen op eigen grond
- Gelegen in rijksbeschermd stadsgezicht Benoordenhout
- Gebruiksoppervlakte ca. 189m˛, gemeten conform NVM meetinstructie
- Perceeloppervlakte 159m2
- Energielabel C
- 10 zonnepanelen aanwezig
- Geheel voorzien van houten kozijnen met grotendeels dubbel glas
- Verwarming en warmwatervoorziening door middel van een CV-combiketel, nefit 2024
- Elektra: 11 groepen aardlekschakelaar
- De onderhoudssituatie is binnen en buiten is goed;
- De onderhoudssituatie van het sanitair en de keuken is modern
- De woning is voorzien van een aantal originele details, zoals paneeldeuren, ornamentenplafond, etc.
- Model NVM-koopakte van toepassing
- In de koopakte zal de asbest-, ouderdoms- en meetinstructieclausule worden opgenomen
- Aanvaarding in overleg.

Interesse in dit huis? Schakel direct uw eigen NVM-aankoopmakelaar in. Uw NVM-aankoopmakelaar komt op voor uw belang en bespaart u tijd, geld en zorgen. Adressen van collega NVM-aankoopmakelaars in Haaglanden vindt u op Funda.

" Deze informatie is door ons met de hoogstnodige zorgvuldigheid samengesteld. Door ons kantoor wordt echter geen enkele aansprakelijkheid aanvaard voor enige onvolledigheid, onjuistheid of anderszins, dan wel de gevolgen daarvan. Alle opgegeven maten en oppervlakten zijn indicatief.
Overdracht  
Status VERKOCHT ONDER VOORBEHOUD
Vraagprijs
Aanvaarding IN_OVERLEG
Bouwvorm  
Soort object
Soort woning HERENHUIS
Type woning Woonhuis
Kwaliteit woning
Bouwjaar 1929
Bouwjaar toelichting
Bouwvorm BESTAANDE_BOUW
Ligging aan rustige weg, in woonwijk, vrij uitzicht, beschutte ligging
Indeling  
Woonoppervlakte 189 m2
Perceeloppervlak 159 m2
Gebouwgebonden buitenruimte 29 m2
Inhoud 705 m2
Aantal kamers 7
Aantal slaapkamers 5
Aantal woonlagen woonlagen
Energie  
Energieklasse C
Energie einddatum 2036-02-27
Isolatie dubbel glas
Warmwater CV_KETEL
Verwarming CV_KETEL
C.V.-Ketel Ja, EIGENDOM
Buitenruimte  
Tuin ACHTERTUIN, VOORTUIN
Hoofdtuin ACHTERTUIN
Oppervlakte hoofdtuin 65
Kwaliteit tuin VERZORGD
Parkeergelegenheid
Parkeerfaciliteiten OPENBAAR_PARKEREN, BETAALD_PARKEREN, PARKEERVERGUNNINGEN
Dak  
Soort dak pannen, bitumineuze dakbedekking
Overig  
Permanente bewoning
Bijzonderheden
Onderhoud binnen goed
Onderhoud buiten goed
Huidig gebruik Woonruimte
Huidige bestemming Woonruimte
Voorzieningen  
Voorzieningen TV_KABEL, ZONNEPANELEN, NATUURLIJKE_VENTILATIE
Kadastrale gegevens  
Gemeente 's-Gravenhage
Sectie X
Perceelnummer 3021
Oppervlakte 159 m2
Eigendomssituatie VOLLE_EIGENDOM
Tabel Grafieken
2015 2016

Contact ons