WOON EN GENIET van dit unieke, indrukwekkende en totaal gerenoveerde riante herenhuis (206m˛) met een breedte maat van ruim 6m. Gelegen in het statige Benoordenhout. De woning beschikt over een riante woonkamer met half open keuken, 5/6 ruime slaapkamers, 2 luxe badkamers, een fraai aangelegde zonnige achtertuin en een riante kelder met stahoogte. De woning heeft een energielabel B, geheel voorzien van islerende beglazing en geďsoleerd dak. 
Locatie:
Benoordenhout is een rustige wijk met een luxe en groen karakter. Het grootste deel van de wijk is ontwikkeld in de periode 1915 tot en met 1959. Scholen, crčches en volop speelgelegenheid in de directe omgeving. Het prachtige landgoed Clingendael, het Haagse Bos en Arendsdorp liggen op een steenworp afstand. Op diverse locaties in de wijk (Van Hoytemastraat, Willem Royaardsplein, Weissenbruchstraat) vind je een breed assortiment aan ambachtelijke speciaalzaken en kun je terecht voor je dagelijkse boodschappen. Ook vind je er leuke restaurants en barretjes. Gunstig gelegen ten opzichte van de internationale bedrijven, uitvalswegen, het openbaar vervoer en bovendien op fietsafstand van de Haagse binnenstad, strand & zee.
Indeling:
Begane grond:
Entree op straatniveau met vestibule voorzien van mozaďekvloer en tochtdeur en raam met glas-in-lood tot de hal met toegang tot de kelder en een vergroot toilet met vrijhangend toilet en fontein. De woonkamer beschikt over openslaande deuren naar de diepe achtertuin, gelegen op het noordoosten.Vanuit de woonkamer toegang tot de halfopen keuken met modern keukenblok in L-opstelling, voorzien van inbouwapparatuur zoals een groot fornuis met zes gaspitten en wokbrander, grote oven, afzuigkap, vaatwasser, koelkast en close-in boiler. Ook vanuit de keuken is er toegang tot de tuin.
Eerste verdieping:
Overloop met toilet, voorzien van vrijhangend toilet en fontein. Kamer en suite, met originele schuifseparatie  met vaste kasten en glas-in-lood schuifdeuren, bestaande uit twee kamers. Aan de achterzijde een riante slaapkamer met openslaande deuren naar het balkon over de volle breedte en toegang tot de luxe badkamer. Deze badkamer is uitgerust met een wastafel in meubel, ruime inloopdouche met regen- en handdouche, vrijhangend toilet, mechanische ventilatie en openslaande deuren naar het balkon. Aan de voorzijde een (slaap)kamer, momenteel in gebruik als televisiekamer, en een voorzijkamer met toegang tot balkon.
Tweede verdieping:
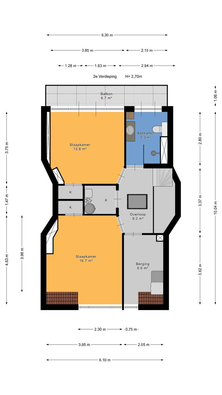
Ruime overloop met daklicht en bergkast met opstelplaats voor cv-ketel en boiler. Tweede moderne badkamer met inloopdouche, wastafel in meubel, vrijhangend toilet, designradiator en openslaande deuren naar het balkon. Vierde slaapkamer met vaste kast en openslaande deuren naar het balkon. Slaapkamer aan de voorzijde met dakkapel en vaste kast. Daarnaast een waskamer aan de voorzijde, voorzien van wasmachine- en drogeraansluiting en dakkapel.
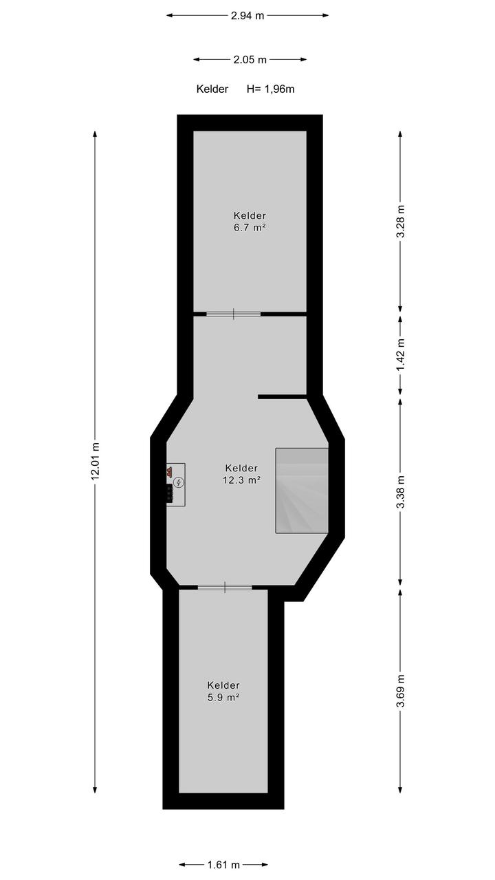
kelder: gelegen onder de gehele hal en keuken, verdeeld in 3 ruimtes met meterkast.
Bijzonderheden:
- Gelegen op eigen grond
- Gelegen in Rijks beschermd stadsgezicht Benoordenhout
- Bouwjaar 1927
- Gebruiksoppervlakte ca. 206 m2, gemeten conform NVM meetinstructie
- Perceeloppervlakte 159m2
- Energielabel: B
- De begane grond en 1e verdieping zijn voorzien van kunststof kozijnen met dubbel glas, in 2021 geheel vernieuwd
- De achterzijde is voorzien van houten kozijnen met Fineo vacuumbeglazing, met een spouw van slechts 0,1 mm tussen twee glasbladen bereikt FINEO een zeer lage thermische isolatiecoëfficiënt, vergelijkbaar met driedubbele beglazing
- Het dak is vernieuwd en geisoleerd in 2023
- Er zijn 11 zonnepanelen geplaatst
- De onderhoudssituatie binnen en buiten is goed 
- verwarming en warmwater door middel van c.v.-combiketel, Intergas CW5, bouwjaar 2024
- De begane grond is voorzien van een eiken houten parkervloer, de 1e en 2e verdieping is grotendeels voorzien van een massief houten vloer welke wit is gelakt
- Model NVM-koopakte van toepassing
- In de koopakte zal de asbest-, ouderdoms- en meetinstructieclausule worden opgenomen
- Levering in overleg
Interesse in dit huis? Schakel direct uw eigen NVM-aankoopmakelaar in. Uw NVM-aankoopmakelaar komt op voor uw belang en bespaart u tijd, geld en zorgen.
" Deze informatie is door ons met de hoogst nodige zorgvuldigheid samengesteld. Door ons kantoor wordt echter geen enkele aansprakelijkheid aanvaard voor enige onvolledigheid, onjuistheid of anderszins, dan wel de gevolgen daarvan. Alle opgegeven maten en oppervlakten zijn indicatief."
      
        
          
            
              | Overdracht | 
                | 
            
            
              | Status | 
              BESCHIKBAAR | 
            
            
              | Vraagprijs | 
               | 
            
            
              | Aanvaarding | 
              IN_OVERLEG | 
            
            
              | Bouwvorm | 
                | 
            
            
              | Soort object | 
               | 
            
            
              | Soort woning | 
              HERENHUIS | 
            
            
              | Type woning | 
              1927 | 
            
            
              | Kwaliteit woning | 
               | 
            
            
              | Bouwjaar | 
              1927 | 
            
            
              | Bouwjaar toelichting | 
               | 
            
            
              | Bouwvorm | 
              BESTAANDE_BOUW | 
            
            
              | Ligging | 
              in woonwijk | 
            
            
              | Indeling | 
                | 
            
            
              | Woonoppervlakte | 
              206 m2 | 
            
            
              | Perceeloppervlak | 
              159 m2 | 
            
            
              | Gebouwgebonden buitenruimte | 
              15 m2 | 
            
            
              | Inhoud | 
              839 m2 | 
            
            
              | Aantal kamers | 
              7 | 
            
            
              | Aantal slaapkamers | 
              6 | 
            
            
              | Aantal woonlagen | 
               woonlagen | 
            
            
              | Energie | 
                | 
            
            
              | Energieklasse | 
              B | 
            
            
              | Energie einddatum | 
              2035-08-04 | 
            
            
              | Isolatie | 
              dakisolatie, dubbel glas, hr glas | 
            
            
              | Warmwater | 
              CV_KETEL | 
            
            
              | Verwarming | 
              CV_KETEL | 
            
            
              | C.V.-Ketel | 
              Ja, EIGENDOM | 
            
            
              | Buitenruimte | 
                | 
            
            
              | Tuin | 
              ACHTERTUIN | 
            
            
              | Hoofdtuin | 
              ACHTERTUIN | 
            
            
              | Oppervlakte hoofdtuin | 
              105 | 
            
            
              | Kwaliteit tuin | 
              NORMAAL | 
            
            
              | Parkeergelegenheid | 
               | 
            
            
              | Parkeerfaciliteiten | 
              OPENBAAR_PARKEREN, PARKEERVERGUNNINGEN, OP_EIGEN_TERREIN | 
            
            
              | Dak | 
                | 
            
            
              | Soort dak | 
              bitumineuze dakbedekking | 
            
            
              | Overig | 
                | 
            
            
              | Permanente bewoning | 
               | 
            
            
              | Bijzonderheden | 
              beschermd stads of dorpsgezicht | 
            
            
              | Onderhoud binnen | 
              goed | 
            
            
              | Onderhoud buiten | 
              goed | 
            
            
              | Huidig gebruik | 
              Woonruimte | 
            
            
              | Huidige bestemming | 
              Woonruimte | 
            
            
              | Voorzieningen | 
                | 
            
            
              | Voorzieningen | 
              MECHANISCHE_VENTILATIE | 
            
            
              | Kadastrale gegevens | 
                | 
            
            
              | Gemeente | 
              's-Gravenhage | 
            
            
              | Sectie | 
              X | 
            
            
              | Perceelnummer | 
              3286 | 
            
            
              | Oppervlakte | 
              159 m2 | 
            
            
              | Eigendomssituatie | 
              VOLLE_EIGENDOM |