9,6

Op basis van
350 reviews

Bel ons

toggle navigation

toggle navigation
Woonhuis
beschikbaar
Tollensstraat 119 'S-GRAVENHAGE

Aanbod / Woonhuis

Tollensstraat 119, 2513 GD 'S-GRAVENHAGE

Tollensstraat 119 'S-GRAVENHAGE
Location

Tollensstraat 119, 2513 GD 'S-GRAVENHAGE

Vraagprijs

€ 1.100.000,- k.k.

€ 1.100.000,- p.m.

Kenmerken

Volledig kenmerken

Ligging in centrum, in woonwijk
Oppervlakte 182 m2
Inhoud 630 m3
Bouwjaar 1900
WOON EN GENIET van deze sfeervolle en met oog voor detail gerenoveerde stadswoning van ca. 190 m˛, gelegen in het hart van het geliefde Zeeheldenkwartier in Den Haag. Dit karaktervolle herenhuis met tuin is onder architectuur intern én extern vrijwel geheel vernieuwd, met behoud van authentieke details en voorzien van het moderne comfort van nu.

De woning biedt een royale leefruimte verdeeld over vier woonlagen, met onder meer een stijlvolle woonkeuken met kookeiland en directe toegang tot de tuin, een sfeervolle woonkamer op de 1e verdieping, vijf ruime slaapkamers en twee moderne badkamers. Opvallend zijn de hoogwaardige afwerking, de prachtige houten visgraatvloer, de moderne Frescolori gietvloer en de geďsoleerde kap die zorgt voor extra comfort.
Gelegen in één van de mooiste straten van het Zeeheldenkwartier, op loopafstand van het centrum, openbaar vervoer en de uitvalswegen, combineert deze woning stijlvol wonen met de dynamiek van de stad.

Locatie:
De woning is gelegen in het hart van het geliefde Zeeheldenkwartier, de Tollensstraat is één van de meest karaktervolle straten van de wijk. De buurt staat bekend om haar sfeervolle 19e-eeuwse architectuur, charmante straten en levendige sfeer. Op korte loopafstand vind je de gezellige Piet Heinstraat, Prins Hendrikstraat en Prins Hendrikplein met een breed aanbod aan hippe winkels, boetieks, koffiebars en restaurants. Het centrum van Den Haag, met zijn uitgebreide winkel- en uitgaansaanbod, ligt op slechts enkele minuten lopen of fietsen. Ook het Vredespaleis, de Paleistuin en de Hofvijver liggen in de directe omgeving. Dankzij de centrale ligging zijn de openbaarvervoervoorzieningen uitstekend – meerdere tram- en buslijnen brengen je binnen enkele minuten naar Den Haag Centraal, Den Haag HS of Scheveningen. De belangrijkste uitvalswegen richting A4, A12 en A13 zijn eveneens goed bereikbaar. Kortom: een ideale locatie voor wie wil wonen in een charmante, levendige wijk met alle voorzieningen binnen handbereik en tegelijk dicht bij het centrum én het strand.

Indeling:
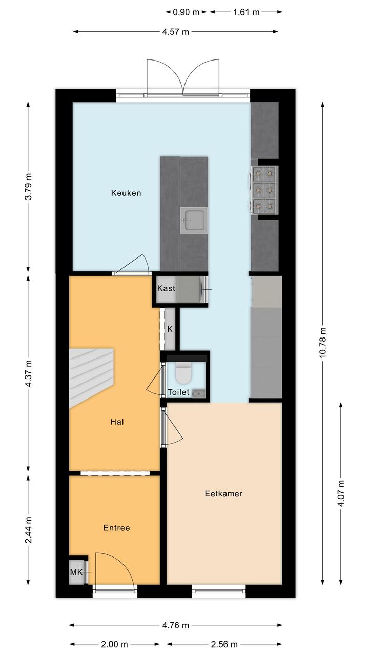
Entree op straatniveau. Ruime hal met meterkast, fraai trappenhuis en modern toilet met vrijhangend closet en fontein. Op de begane grond bevindt zich de royale woonkeuken met aan de voorzijde de eetkamer en aan de achterzijde de keuken met kookeiland. Aan de wandzijde een groot fornuis met 6 gaspitten, dubbele oven en afzuigkap in schouw; het eiland is voorzien van spoelbak, vaatwasser en eetbar. Via een doorloop tussen eetkamer en keuken is er toegang tot een extra keukenblok met stoomoven, Amerikaanse koelkast, een "horecalift" naar de eerste verdieping en een kast met wasmachine- en drogeraansluiting. Vanuit de keuken geven openslaande deuren toegang tot de achtertuin met een vaste houten kastenwand. De tuin is gesitueerd op het oosten/noordoosten en voorzien van vaste tuinverlichting en een aansluitpunt voor een nog te plaatsen terrasverwarming.

Bijzonder detail: in de keuken is een gedeelte van de balkenlaag van de eerste verdieping in het zicht gelaten met een glazen vloer erboven, wat zorgt voor een unieke doorkijk en een prachtige visuele verbinding tussen de woonlagen.

Eerste verdieping:
Overloop met tweede toilet met vrijhangend closet en fontein. Aan de voorzijde bevindt zich de zitkamer met gashaard. Aan de achterzijde bevindt zich de tweede zit/eetkamer met de doorkijk naar de woonkeuken. De voor- en achterkamer zijn met elkaar verbonden via een stijlvolle pantry voorzien van wasbak, koelkast en vaatwasser, en de horecalift vanuit de woonkeuken. De voor- en achterkamer zijn met elkaar verbonden via de pantry, maar ook afzonderlijk te bereiken vanaf de overloop middels fraai in de wand verwerkte schuifdeuren.

Tweede verdieping:
Overloop. Slaapkamer 1 aan de voorzijde over de volle breedte van de woning met doorloop naar een ruime walk-in closet en de royale, moderne badkamer (ook bereikbaar vanaf de overloop) met inloopdouche met glazen wand, dubbele wastafel in meubel, vrijhangend toilet en designradiator. Slaapkamer 2 aan de achterzijde.

Derde verdieping:
Overloop, opvallend licht dankzij het grote dakraam, met kast voor de cv-ketel, unit mechanische ventilatie en aansluiting voor de wasmachine. Slaapkamer 3 aan de achterzijde met maatwerkkasten in de knieschotten. Tussengelegen tweede badkamer met douche, wastafel in meubel, vrijhangend toilet en designradiator. Slaapkamer 4 aan de voorzijde met Velux-dakraam en eveneens maatwerkkasten in de knieschotten. De originele balken in het zicht geven deze verdieping een sfeervol karakter.

Bijzonderheden

- Gelegen op eigen grond in het Rijksbeschermd stadsgezicht Zeeheldenkwartier
- Woonoppervlak ca. 182 m˛, gemeten conform de NVM-meetinstructie (NEN 2580)
- Bouwjaar circa 1900, de woning is in 2013/2014 volledig gerenoveerd met behoud van originele details
- Energielabel C
- Onderhoud binnen en buiten goed; sanitair en keuken in moderne staat
- Gehele begane grond voorzien van gietvloer met vloerverwarming, op de 1e en 2e verdieping een visgraat parketvloer met bies; grenen houten vloer op de derde verdieping
- Bijkeuken/pantry tussen woonkamer en eetkamer op de eerste verdieping
- Twee badkamers (tweede en derde verdieping) en op elke verdieping een toilet
- Er is een horecaliftje tussen de begane grond en 1e verdieping
- Houten kozijnen en kunststof kozijnen deels v.v. dubbel glas
- Cv-combiketel uit 2013 (Remeha Calenta), bouwjaar 2013
- Bijkeuken/pantry tussen woonkamer en eetkamer op de eerste verdieping
- Twee badkamers (tweede en derde verdieping) en op elke verdieping een toilet
- Model NVM-koopakte van toepassing
- In de koopakte worden de asbest-, ouderdoms- en meetinstructieclausule opgenomen
- Levering in overleg / kan desgewenst snel plaatsvinden

Interesse in deze woning?
Schakel direct uw eigen NVM-aankoopmakelaar in. Een aankoopmakelaar behartigt uitsluitend uw belangen en bespaart u tijd, geld en zorgen. Adressen van collega NVM-makelaars in Haaglanden vindt u op Funda.nl.

Deze informatie is met de grootst mogelijke zorg samengesteld. Er wordt echter geen aansprakelijkheid aanvaard voor onvolledigheden of onjuistheden. Alle opgegeven maten en oppervlakten zijn indicatief.
Overdracht  
Status BESCHIKBAAR
Vraagprijs
Aanvaarding IN_OVERLEG
Bouwvorm  
Soort object
Soort woning HERENHUIS
Type woning Woonhuis
Kwaliteit woning
Bouwjaar 1900
Bouwjaar toelichting
Bouwvorm BESTAANDE_BOUW
Ligging in centrum, in woonwijk
Indeling  
Woonoppervlakte 182 m2
Perceeloppervlak 87 m2
Gebouwgebonden buitenruimte 0 m2
Inhoud 630 m2
Aantal kamers 7
Aantal slaapkamers 4
Aantal woonlagen woonlagen
Energie  
Energieklasse C
Energie einddatum 2032-01-10
Isolatie dakisolatie, gedeeltelijk dubbel glas
Warmwater CV_KETEL
Verwarming CV_KETEL, VLOERVERWARMING_GEDEELTELIJK
C.V.-Ketel Ja, EIGENDOM
Buitenruimte  
Tuin ACHTERTUIN
Hoofdtuin ACHTERTUIN
Oppervlakte hoofdtuin 28
Kwaliteit tuin NORMAAL
Parkeergelegenheid
Parkeerfaciliteiten OPENBAAR_PARKEREN, BETAALD_PARKEREN, PARKEERVERGUNNINGEN
Dak  
Soort dak pannen
Overig  
Permanente bewoning
Bijzonderheden beschermd stads of dorpsgezicht
Onderhoud binnen goed
Onderhoud buiten goed
Huidig gebruik Woonruimte
Huidige bestemming Woonruimte
Voorzieningen  
Voorzieningen NATUURLIJKE_VENTILATIE
Kadastrale gegevens  
Gemeente 's-Gravenhage
Sectie O
Perceelnummer 5506
Oppervlakte 87 m2
Eigendomssituatie VOLLE_EIGENDOM
Tabel Grafieken
2015 2016

Contact ons