9,6

Op basis van
350 reviews

Bel ons

toggle navigation

toggle navigation
Appartement
verkocht
Stadhouderslaan 38 'S-GRAVENHAGE

Aanbod / Appartement

Stadhouderslaan 38, 2517 HZ 'S-GRAVENHAGE

Stadhouderslaan 38 'S-GRAVENHAGE
Location

Stadhouderslaan 38, 2517 HZ 'S-GRAVENHAGE

Vraagprijs

€ 425.000,- k.k.

€ 425.000,- p.m.

Kenmerken

Volledig kenmerken

Ligging in woonwijk
Oppervlakte 88 m2
Inhoud 276 m3
Bouwjaar 1952
WOON EN GENIET van dit driekamer appartement (ca. 88m2) aan de Stadhouderslaan, waar comfortabel wonen wordt gecombineerd met een toplocatie nabij zee, stad en “De Fred”. De woning beschikt over een lichte woonkamer, twee slaapkamers, keuken, badkamer en een zonnig balkon aan de achterzijde, maar onderscheidt zich vooral door de extra zolderkamer van circa 13 m˛. Deze praktische en multifunctionele ruimte is ideaal als thuiswerkplek, hobbyruimte of extra bergruimte en vergroot het wooncomfort aanzienlijk. Gelegen op een geliefde plek in Den Haag, met winkels, horeca, strand en uitstekend openbaar vervoer binnen handbereik, biedt deze woning een fijne indeling, extra ruimte én een locatie waar wonen écht genieten is.

Locatie
Wonen aan de Stadhouderslaan betekent genieten van het beste dat Den Haag te bieden heeft. Deze locatie vormt de perfecte uitvalsbasis voor iedereen die centraal én comfortabel willen wonen. Op korte loopafstand ligt de populaire Frederik Hendriklaan “De Fred” met een gevarieerd aanbod aan boetieks, speciaalzaken, supermarkten, gezellige lunchrooms en restaurants. Hier hangt een prettige, bijna dorpse sfeer, midden in de stad. Zin in zee en strand? Binnen enkele minuten fietsen sta je op het strand van Scheveningen of wandel je over de boulevard. Ook het openbaar vervoer is uitstekend geregeld: diverse tram- en buslijnen stoppen praktisch om de hoek en brengen je snel naar het centrum van Den Haag, de stations Centraal en Hollands Spoor en internationale organisaties. Tel daar de goede aansluiting op de uitvalswegen bij op en je hebt een locatie die stedelijke dynamiek moeiteloos combineert met ontspanning aan zee. Een plek waar wonen écht genieten is.

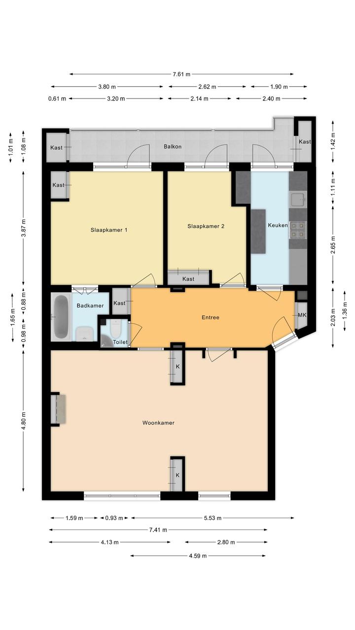
Indeling
Gesloten entree met trappenhuis naar de tweede woonlaag. Entree van het appartement. Hal met meterkast. Vanuit de hal is de ruime woonkamer bereikbaar, gelegen aan de voorzijde van de woning. Deze woonkamer bestond voorheen uit twee kamers en biedt hierdoor een prettige, royale leefruimte met veel lichtinval.

Aan de achterzijde van het appartement is de keuken gesitueerd. De keuken beschikt over een vaste kast met de opstelplaats van de cv-ketel en is uitgerust met diverse inbouwapparatuur, waaronder een koelkast, vriezer, 4-pits gaskookplaat, afzuigkap en oven. Vanuit de keuken is er toegang tot het balkon, voorzien van twee balkonkasten en gunstig gelegen op de zon van circa 14:00 tot 20:00 uur in de zomer.

Slaapkamer 1 is eveneens aan de achterzijde gelegen, beschikt over vaste kasten en heeft toegang tot het balkon. Slaapkamer 2 is voorzien van een vaste kast en geeft toegang tot zowel het balkon als de badkamer. De badkamer is uitgevoerd met een bad-/douchecombinatie en een wastafel in meubel. Daarnaast is er een separaat toilet met fontein.

Via het portiek is de zolderkamer (ca. 13m2) bereikbaar. Deze ruimte is voorzien van elektra, water en warmwater middels een close-in boiler, evenals aansluitingen voor wasmachine en droger.

Aan de achterzijde van het gebouw is er tevens, te bereiken via een afgesloten poort, een eigen fietsenberging.

Bijzonderheden
- Gelegen op eigen grond
- Bouwjaar 1952
- Woonoppervlakte ca. 88m˛, balkon/buitenruimte ca. 9m2, zolderkamer ca. 13m2, gemeten via conform NVM-meetinstructie
- Ruime extra kamer op de zolder, te bereiken via het portiek (met elektra, water en wasmachine aansluiting) en fietsenberging aan de achterzijde van het gebouw
- Actieve VvE, bijdrage € 88,33 per maand
- Energielabel: C
- De voorzijde is voorzien van kunststof kozijnen HR++ glas en de achterzijde van houten kozijnen met dubbel glas
- meterkast: meterkast 7 groepen, 3 aardlekschakelaars en hoofdschakelaar
- Verwarming en warmwater door middel van een c.v.-combiketel, bouwjaar 2004
- Model NVM-koopakte van toepassing
- In de koopakte zal de asbest-, ouderdoms- en meetinstructieclausule worden opgenomen
- Project notaris van toepassing.
- Levering: in overleg / per direct

Interesse in dit huis? Schakel direct uw eigen NVM-aankoopmakelaar in. Uw NVM-aankoopmakelaar komt op voor uw belang en bespaart u tijd, geld en zorgen. Adressen van collega NVM-aankoopmakelaars in Haaglanden vindt u op Funda.

" Deze informatie is door ons met de hoogst nodige zorgvuldigheid samengesteld. Door ons kantoor wordt echter geen enkele aansprakelijkheid aanvaard voor enige onvolledigheid, onjuistheid of anderszins, dan wel de gevolgen daarvan. Alle opgegeven maten en oppervlakten zijn indicatief."
Overdracht  
Status VERKOCHT
Vraagprijs
Aanvaarding IN_OVERLEG
Bouwvorm  
Soort object
Soort woning
Type woning Appartement
Kwaliteit woning
Bouwjaar 1952
Bouwjaar toelichting
Bouwvorm BESTAANDE_BOUW
Ligging in woonwijk
Indeling  
Woonoppervlakte 88 m2
Perceeloppervlak 0 m2
Gebouwgebonden buitenruimte 9 m2
Inhoud 276 m2
Aantal kamers 5
Aantal slaapkamers 2
Aantal woonlagen 1 woonlagen
Energie  
Energieklasse C
Energie einddatum 2035-11-04
Isolatie gedeeltelijk dubbel glas
Warmwater CV_KETEL
Verwarming CV_KETEL
C.V.-Ketel Ja, EIGENDOM
Buitenruimte  
Tuin GEEN_TUIN
Hoofdtuin
Oppervlakte hoofdtuin
Kwaliteit tuin
Parkeergelegenheid
Parkeerfaciliteiten OPENBAAR_PARKEREN, BETAALD_PARKEREN, PARKEERVERGUNNINGEN
Dak  
Soort dak pannen
Overig  
Permanente bewoning
Bijzonderheden beschermd stads of dorpsgezicht
Onderhoud binnen goed
Onderhoud buiten goed
Huidig gebruik Woonruimte
Huidige bestemming Woonruimte
Voorzieningen  
Voorzieningen NATUURLIJKE_VENTILATIE
Kadastrale gegevens  
Gemeente 's-Gravenhage
Sectie N
Perceelnummer 7757
Oppervlakte m2
Eigendomssituatie VOLLE_EIGENDOM
Tabel Grafieken
2015 2016

Contact ons