9,6

Op basis van
350 reviews

Bel ons

toggle navigation

toggle navigation
Appartement
verkocht onder voorbehoud
Segbroeklaan 20

Aanbod / Appartement

Segbroeklaan 20 , 2565 DL 'S-GRAVENHAGE

Segbroeklaan 20
Location

Segbroeklaan 20 , 2565 DL 'S-GRAVENHAGE

Vraagprijs

€ 375.000,- k.k.

€ 375.000,- p.m.

Kenmerken

Volledig kenmerken

Ligging in woonwijk, vrij uitzicht
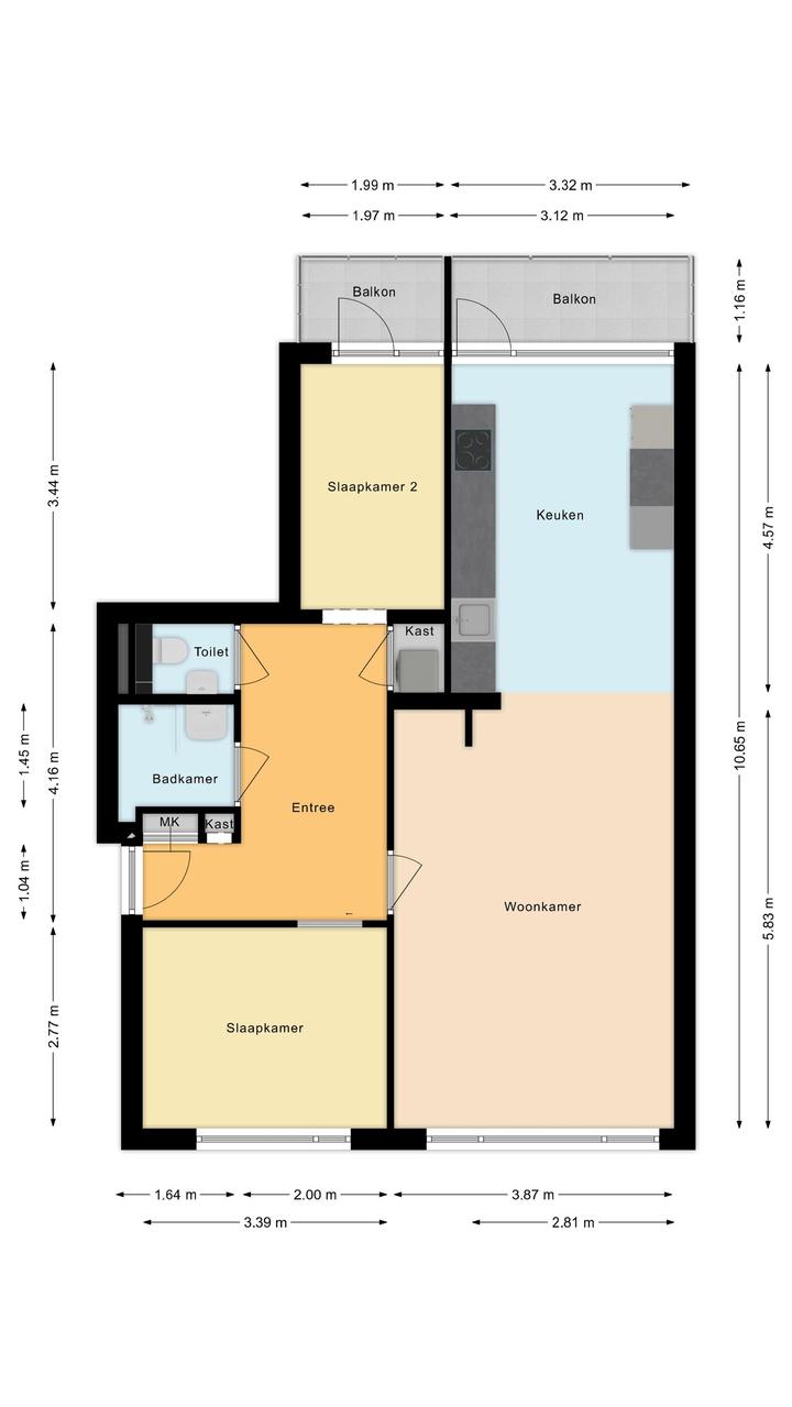
Oppervlakte 72 m2
Inhoud 242 m3
Bouwjaar 1956
WOON EN GENIET in dit in 2023 volledig gemoderniseerde, appartement. De woning heeft een doordachte indeling met een ruime woonkamer met moderne open keuken, twee slaapkamers, een luxe badkamer en twee zonnige balkons. Vanuit de woonkamer kijk je uit over het groene plantsoen aan de Segbroeklaan met de Haagse Beek en wandelpaden. Hier woon je op een ideale locatie tussen het strand en het centrum van Den Haag, met winkels, openbaar vervoer en voorzieningen dichtbij.

Locatie:
Het appartement heeft vrij uitzicht over het plantsoen aan de Segbroeklaan met brede groenstrook met de Haagse Beek en wandelpaden. Ook ligt het centraal in een fijne woonomgeving tussen het Zuiderstrand en het centrum van Den Haag. De populaire winkelstraten Frederik Hendriklaan en de Fahrenheitstraat liggen op korte loop-/fietsafstand. Goede parkeermogelijkheden voor bezoekers en uitstekende verbindingen met het openbaar vervoer.

Indeling:
Afgesloten centrale entree met trap en lift naar de tweede verdieping. Entree van het appartement met ruime hal met meterkast, een separaat toilet met vrijdragend closet en fontein en een praktische kast met aansluitingen voor wasmachine en droger..

De zonnige woonkamer heeft grote raampartijen aan zowel de voor- als achterzijde, glad gestucte wanden en een fraaie laminaatvloer. Aan de achterzijde bevindt zich de open keuken uitgevoerd met een moderne keukenopstelling voorzien van hoge kasten aan één zijde met onder meer een koelkast, vriezer, oven, combi-oven, vijfpits inductiekookplaat, afzuigkap, vaatwasser en Quooker. Vanuit de woonkamer is er toegang tot het balkon met ochtendzon van circa 8:00 tot 14:00 uur — een heerlijke plek om van de dag te beginnen.

De slaapkamer aan de voorzijde heeft een op maat gemaakte kastenwand. Luxe, moderne badkamer met een inloopdouche, wastafelmeubel en elektrische handdoekradiator. De tweede (slaap)kamer ligt aan de achterzijde en beschikt over een kastenwand aan beide zijde. Hier is ook een elektrische boiler geplaatst. De (slaap)kamer heeft toegang tot een tweede, (werk)balkon.

Tevens voorzien van een afgesloten bewoners parkeerterrein waar parkeerplaatsen beschikbaar zijn afhankelijk van een wachtrij. Tevens is er ook vanaf de achterzijde directe toegang tot het gebouw en de eigen ruime (fietsen-)berging,

Bijzonderheden:
- Bouwjaar 1956
- Gelegen op eeuwigdurend heruitgegeven, middels obligatoire overeenkomst, erfpachtgrond met een grondwaarde van € 48.152,--
- Erfpachtcanon € 433,38 en € 33,-- beheerkosten per jaar, eerstvolgende canonherziening 1 juli 2028
- Gebruiksoppervlakte ca. 72m˛, buitenruimte/balkon ca. 6m˛, gemeten conform NVM meetinstructie
- Energielabel C
- Actieve VVE bijdrage € 243,-- per maand exclusief voorschot stookkosten € 60,= per maand
- De VVE is ingeschreven in de KvK, er is een reservefonds, gemeenschappelijke opstalverzekering en er is een MJOP
- Energielabel: C
- Geheel voorzien van dubbel glas in kunststof kozijnen en 1 houten kozijn (deur naar werkbalkon)
- Verwarming middels blokverwarming en warmwatervoorziening door middel van boiler (elektrisch)
- Instapklaar appartement, in 2023 geheel hoogwaardig gerenoveerd
- Luxe woonkeuken en sanitair
- Meterkast: 12 groepen met 1 aardlekschakelaar
- Model NVM-koopakte van toepassing;
- In de koopakte zal de asbest-, ouderdoms- en meetinstructieclausule worden opgenomen;
- Aanvaarding in overleg.

Interesse in dit huis? Schakel direct uw eigen NVM-aankoopmakelaar in. Uw NVM-aankoopmakelaar komt op voor uw belang en bespaart u tijd, geld en zorgen. Adressen van collega NVM-aankoopmakelaars in Haaglanden vindt u op Funda.

" Deze informatie is door ons met de hoogstnodige zorgvuldigheid samengesteld. Door ons kantoor wordt echter geen enkele aansprakelijkheid aanvaard voor enige onvolledigheid, onjuistheid of anderszins, dan wel de gevolgen daarvan. Alle opgegeven maten en oppervlakten zijn indicatief.".
Overdracht  
Status VERKOCHT ONDER VOORBEHOUD
Vraagprijs
Aanvaarding IN_OVERLEG
Bouwvorm  
Soort object
Soort woning
Type woning 1956
Kwaliteit woning
Bouwjaar 1956
Bouwjaar toelichting
Bouwvorm BESTAANDE_BOUW
Ligging in woonwijk, vrij uitzicht
Indeling  
Woonoppervlakte 72 m2
Perceeloppervlak 0 m2
Gebouwgebonden buitenruimte 6 m2
Inhoud 242 m2
Aantal kamers 3
Aantal slaapkamers 2
Aantal woonlagen 1 woonlagen
Energie  
Energieklasse C
Energie einddatum 2032-11-28
Isolatie dubbel glas
Warmwater ELEKTRISCHE_BOILER_EIGENDOM
Verwarming BLOKVERWARMING
C.V.-Ketel -
Buitenruimte  
Tuin GEEN_TUIN
Hoofdtuin
Oppervlakte hoofdtuin
Kwaliteit tuin
Parkeergelegenheid
Parkeerfaciliteiten OPENBAAR_PARKEREN, BETAALD_PARKEREN, PARKEERVERGUNNINGEN
Dak  
Soort dak bitumineuze dakbedekking
Overig  
Permanente bewoning
Bijzonderheden
Onderhoud binnen goed tot uitstekend
Onderhoud buiten goed
Huidig gebruik Woonruimte
Huidige bestemming Woonruimte
Voorzieningen  
Voorzieningen MECHANISCHE_VENTILATIE, NATUURLIJKE_VENTILATIE
Kadastrale gegevens  
Gemeente 's-Gravenhage
Sectie AN
Perceelnummer 5554
Oppervlakte m2
Eigendomssituatie ERFPACHT
Tabel Grafieken
2015 2016

Contact ons