9,6

Op basis van
350 reviews

Bel ons

toggle navigation

toggle navigation
Appartement
beschikbaar
Groot Hertoginnelaan 31 'S-GRAVENHAGE

Aanbod / Appartement

Groot Hertoginnelaan 31, 2517 EB 'S-GRAVENHAGE

Groot Hertoginnelaan 31 'S-GRAVENHAGE
Location

Groot Hertoginnelaan 31, 2517 EB 'S-GRAVENHAGE

Vraagprijs

€ 925.000,- k.k.

€ 925.000,- p.m.

Kenmerken

Volledig kenmerken

Ligging in woonwijk
Oppervlakte 185 m2
Inhoud 707 m3
Bouwjaar 1896
GROOT HERTOGINNELAAN 31 EN 31A

WOON EN GENIET in deze stijlvolle en karaktervolle bel-etage met souterrain (186m2) uit 1896, die historie ademt en een unieke woonbeleving biedt met hoge plafonds, originele ornamenten en prachtige glas-in-looddetails. Tijdens de renovatie in 2006 zijn de bel-etage en het souterrain samengevoegd tot één royale en functionele woning, waarin klassieke charme en modern wooncomfort in balans zijn. De riante woonkamer en suite, keuken en balkon met trap naar de tuin op de bel-etage en 3 slaapkamers, badkamer, riante inpandige berging in het souterrain zorgen voor een bijzondere woonervaring, met een zonnige tuin aan de Haagse Beek als extra troef. Gelegen in de wijk Duinoord/Zorgvliet, biedt deze woning het beste van Den Haag: stad en strand binnen handbereik, een groene omgeving en alle voorzieningen op loopafstand.

Locatie:
Gelegen in de wijk Zorgvliet/Duinoord: Exclusief wonen tussen stad en strand. Zorgvliet/Duinoord is een van de meest gewilde wijken van Den Haag. Hier woont u in een groene omgeving met alle voorzieningen binnen handbereik. De gezellige Frederik Hendriklaan en Reinkenstraat liggen op loopafstand, ideaal voor winkelen en horeca. Binnen 10 minuten fietsen bent u in het centrum of op het strand. Openbaar vervoer is om de hoek en uitvalswegen zijn goed bereikbaar. De wijk biedt diverse (internationale) scholen, parken en culturele hotspots zoals het Kunstmuseum. Deze wijk combineert exclusiviteit en een toplocatie in Den Haag.

Woning:
Zeer stijlvol en doordrenkt met karakter: deze unieke woning uit 1896 ademt historie en elegantie. Met hoge plafonds van maar liefst 3,35 meter, originele ornamenten en prachtige glas-in-looddetails op de bel-etage biedt deze woning een ongeëvenaarde sfeer.

In 2006 is de woning grondig verbouwd, waarbij de bel-etage en het souterrain zijn samengevoegd tot één zeer royale (ca. 185m2) en praktische woning. Hierdoor is een ruimtelijke indeling ontstaan met een perfecte balans tussen historische charme en modern wooncomfort.

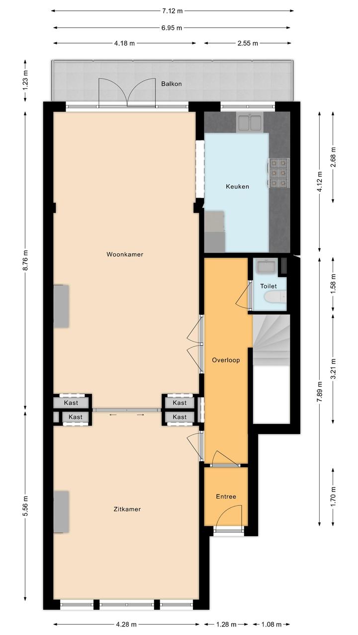
Indeling:
Bel-etage:
Een entree op de bel-etage verwelkomt met een klassiek tochtportaal en de originele marmeren vloer. De hal leidt via originele dubbele deuren met glas-in-lood naar een indrukwekkende woonkamer en suite. Hier wordt de charme van weleer gecombineerd met hedendaags gemak. De voorkamer, met karakteristieke schouw, en de achterkamer, met openslaande deuren naar het balkon met trap naar de riante achtertuin, zijn verbonden door de originele schuifseparatie met schuifdeuren met glas in lood en vier vaste kasten. De halfopen keuken, voorzien van een luxe Boretti-fornuis met 4 gaspitten, bakplaat en 2 ovens, vaatwasser en ruime koel-vriescombinatie en close-in-boiler, maakt deze woonlaag compleet.

Deze etage is geheel voorzien van een eikenhouten parketvloer.

Souterrain:
De hal biedt toegang tot een tweede toilet met vrijhangend closet, fontein en mechanische ventilatie. Daarnaast is er een bergkast onder de trap naar de beletage met de meterkast. Aan de voorzijde bevindt zich een lichte slaapkamer. Een zeer ruime inpandige berging ruimte biedt voor de cv-ketel, wasmachine en droger. De badkamer is voorzien van een derde toilet, inloopdouche, hoekbad, wastafel, designradiator en mechanische ventilatie. Aan de achterzijde ligt de royale hoofdslaapkamer met walk-in closet en openslaande deuren naar de tuin aan de Haagse Beek. Ook de derde slaapkamer, eveneens aan de achterzijde, beschikt over een praktische inloopkast.

De gehele begane grond is voorzien van een solide betonvloer met vloerverwarming en is afgewerkt met plavuizen. Dankzij de slimme herindeling in 2006 is een ruime en functionele woning ontstaan waarin sfeer, ruimte en authenticiteit samenkomen.

Bijzonderheden:
- Gelegen op eigen grond
- Gelegen in rijks beschermd stadsgezicht Duinoord
- Bouwjaar 1896
- De bel-etage en het souterrain zijn in 2006 bouwkundig samengevoegd tot 1 woning, kadastraal zijn het nog twee appartementsrechten
- Gebruiksoppervlakte 185m˛, gemeten conform NVM meetinstructie
- VVE is in oprichting
- Energielabel: E (31a) en F (31)
- Geheel voorzien van houten kozijnen deels dubbel glas
- Verwarming door middel van c.v.-combiketel en warmwater door middel van c.v.-combiketel (2016) en boiler (2006)
- De bel-etage is voorzien van een eikenhouten parketvloer en het souterrain is voorzien van een betonvloer met vloerverwarming en is afgewerkt met plavuizen
- Zie de plattegronden voor de indeling en complete maatvoering
- Model NVM-koopakte van toepassing
- In de koopakte zal de asbest-, ouderdoms- en meetinstructieclausule worden opgenomen
- Oplevering in overleg.

ENGLISH TEXT via the following link:
https://www.funda.nl/en/detail/koop/den-haag/appartement-groot-hertoginnelaan-31/43832566/

Interesse in dit huis? Schakel direct uw eigen NVM-aankoopmakelaar in.
Uw NVM-aankoopmakelaar komt op voor uw belang en bespaart u tijd, geld en zorgen.

" Deze informatie is door ons met de hoogst nodige zorgvuldigheid samengesteld. Door ons kantoor wordt echter geen enkele aansprakelijkheid aanvaard voor enige onvolledigheid, onjuistheid of anderszins, dan wel de gevolgen daarvan. Alle opgegeven maten en oppervlakten zijn indicatief."
 
Overdracht  
Status BESCHIKBAAR
Vraagprijs
Aanvaarding IN_OVERLEG
Bouwvorm  
Soort object
Soort woning
Type woning Appartement
Kwaliteit woning
Bouwjaar 1896
Bouwjaar toelichting
Bouwvorm BESTAANDE_BOUW
Ligging in woonwijk
Indeling  
Woonoppervlakte 185 m2
Perceeloppervlak 0 m2
Gebouwgebonden buitenruimte 9 m2
Inhoud 707 m2
Aantal kamers 5
Aantal slaapkamers 3
Aantal woonlagen 2 woonlagen
Energie  
Energieklasse E
Energie einddatum 2030-12-29
Isolatie gedeeltelijk dubbel glas
Warmwater CV_KETEL, GASBOILER_EIGENDOM
Verwarming CV_KETEL, VLOERVERWARMING_GEDEELTELIJK
C.V.-Ketel Ja, EIGENDOM
Buitenruimte  
Tuin ACHTERTUIN
Hoofdtuin ACHTERTUIN
Oppervlakte hoofdtuin 93
Kwaliteit tuin NORMAAL
Parkeergelegenheid
Parkeerfaciliteiten OPENBAAR_PARKEREN, PARKEERVERGUNNINGEN
Dak  
Soort dak pannen, bitumineuze dakbedekking
Overig  
Permanente bewoning
Bijzonderheden beschermd stads of dorpsgezicht
Onderhoud binnen goed, vloer souterrain beton met vloerverwarming
Onderhoud buiten goed
Huidig gebruik Woonruimte
Huidige bestemming Woonruimte
Voorzieningen  
Voorzieningen MECHANISCHE_VENTILATIE
Kadastrale gegevens  
Gemeente 's-Gravenhage
Sectie N
Perceelnummer 7735
Oppervlakte m2
Eigendomssituatie VOLLE_EIGENDOM
Tabel Grafieken
2015 2016

Contact ons