9,6

Op basis van
350 reviews

Bel ons

toggle navigation

toggle navigation
Appartement
beschikbaar
Charlotte de Bourbonstraat 30 'S-GRAVENHAGE

Aanbod / Appartement

Charlotte de Bourbonstraat 30, 2595 VM 'S-GRAVENHAGE

Charlotte de Bourbonstraat 30 'S-GRAVENHAGE
Location

Charlotte de Bourbonstraat 30, 2595 VM 'S-GRAVENHAGE

Vraagprijs

€ 350.000,- k.k.

€ 350.000,- p.m.

Kenmerken

Volledig kenmerken

Ligging in woonwijk
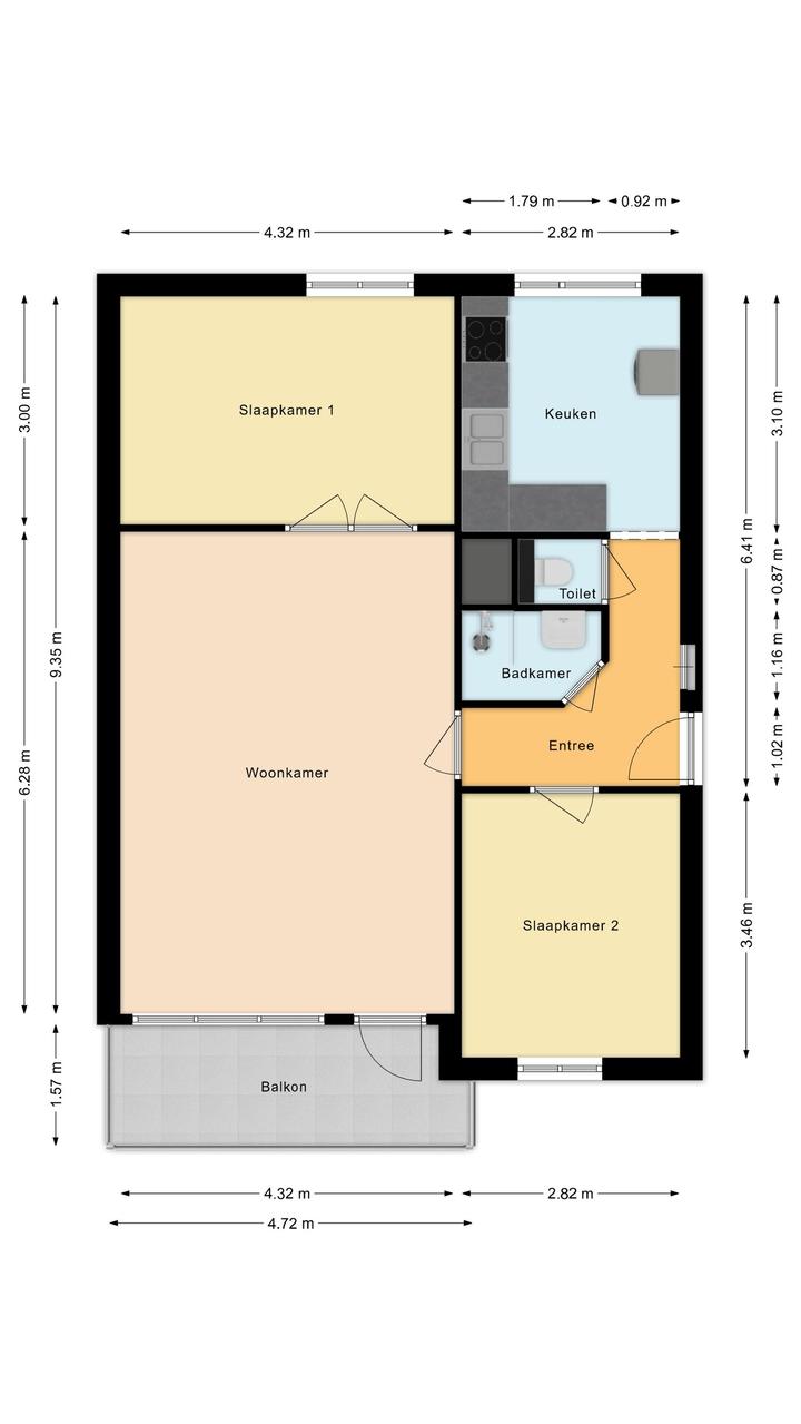
Oppervlakte 70 m2
Inhoud 228 m3
Bouwjaar 1982
WOON EN GENIET in dit verzorgde en goed ingedeelde appartement (ca. 70m2) met twee slaapkamers, een lichte woonkamer met balkon gelegen op het zuidwesten, moderne keuken en eigentijds sanitair. De praktische indeling en het prettige lichtinval zorgen voor een comfortabel en instapklaar geheel, met bovendien een handige berging op de begane grond. Gelegen in het populaire Bezuidenhout-West, op slechts enkele minuten lopen van de gezellige Theresiastraat, openbaar vervoer met zowel Den Haag Centraal als station Laan van NOI nabij, en de uitvalswegen (A4, A12 en A13) bevinden zich letterlijk om de hoek.


Locatie:
Gelegen in Bezuidenhout-West, een centrale en levendige wijk met alle voorzieningen binnen handbereik. Op slechts enkele minuten lopen bevindt zich de gezellige Theresiastraat met een breed aanbod aan winkels, supermarkten, lunchrooms en restaurants. Ook Scheveningen en het centrum van Den Haag zijn in een mum van tijd te bereiken. De ligging ten opzichte van het openbaar vervoer is uitstekend: zowel station Den Haag Centraal als station Laan van NOI zijn snel en eenvoudig bereikbaar. Daarnaast zijn de uitvalswegen (A4, A12 en A13) om de hoek gelegen, waardoor steden als Rotterdam, Amsterdam en Utrecht goed bereikbaar zijn.



Indeling:

Gesloten portiek met trap naar de 2e verdieping. Entree appartement. Hal met meterkast.

Aan de voorzijde bevindt zich de eerste slaapkamer. De woonkamer is eveneens aan de voorzijde gelegen en beschikt over een balkon waar je kunt genieten van de middag- en avondzon. Vanuit de woonkamer geven dubbele deuren toegang tot de tweede slaapkamer aan de achterzijde. Ruime keuken uitgevoerd met een modern keukenblok in L-opstelling en voorzien van diverse inbouwapparatuur, waaronder een vaatwasser, 4-pits inductiekookplaat, afzuigkap, magnetron en oven. Tevens is er ruimte voor een losse koel-/vrieskast en bevindt zich hier de aansluiting voor de wasmachine.

De moderne badkamer is voorzien van een inloopdouche, wastafel in meubel en mechanische ventilatie. Het separate, moderne toilet beschikt over een vrijhangend closet. Zowel de badkamer als het toilet zijn in 2025 vernieuwd.

Op de begane grond is er een praktische berging van ca. 8 m2.



Bijzonderheden:
- Erfpachtcanon eeuwigdurend afgekocht
- Bouwjaar 1982
- Gebruiksoppervlakte ca. 70m2, buitenruimte/balkon ca. 7m2, gemeten conform NVM meetinstructie
- Actieve VvE, bijdrage € 162,-- per maand, ingeschreven in de KvK, MJOP, reservefonds en een gemeenschappelijke opstalverzekering
- De Vereniging van Eigenaren is actief en kijkt vooruit. Voor 2026 staat een verduurzamingstraject gepland. Het volgende zal komende zomer worden uitgevoerd: * Plaatsen van HR +++ glas en kunststof kozijnen* Toepassen van vloerisolatie
- Energielabel C
- De woning is gasloos
- Verwarming door middel van stadsverwarming en warmwatervoorziening door middel van een centrale voorziening
- De onderhoudssituatie binnen en buiten is goed
- De badkamer en het toilet zijn in 2025 geheel vernieuwd
- Model NVM-koopakte van toepassing
- In de koopakte zullen de asbest-, ouderdoms- en meetinstructieclausule worden opgenomen
- Levering in overleg

Interesse in dit huis? Schakel direct uw eigen NVM-aankoopmakelaar in. Uw NVM-aankoopmakelaar komt op voor uw belang en bespaart u tijd, geld en zorgen. Adressen van collega NVM-aankoopmakelaars in Haaglanden vindt u op Funda.

" Deze informatie is door ons met de hoogst nodige zorgvuldigheid samengesteld. Door ons kantoor wordt echter geen enkele aansprakelijkheid aanvaard voor enige onvolledigheid, onjuistheid of anderszins, dan wel de gevolgen daarvan. Alle opgegeven maten en oppervlakten zijn indicatief."
Overdracht  
Status BESCHIKBAAR
Vraagprijs
Aanvaarding IN_OVERLEG
Bouwvorm  
Soort object
Soort woning
Type woning Appartement
Kwaliteit woning
Bouwjaar 1982
Bouwjaar toelichting
Bouwvorm BESTAANDE_BOUW
Ligging in woonwijk
Indeling  
Woonoppervlakte 70 m2
Perceeloppervlak 0 m2
Gebouwgebonden buitenruimte 7 m2
Inhoud 228 m2
Aantal kamers 3
Aantal slaapkamers 2
Aantal woonlagen 1 woonlagen
Energie  
Energieklasse C
Energie einddatum 2027-06-07
Isolatie dubbel glas
Warmwater CENTRALE_VOORZIENING
Verwarming STADSVERWARMING
C.V.-Ketel -
Buitenruimte  
Tuin GEEN_TUIN
Hoofdtuin
Oppervlakte hoofdtuin
Kwaliteit tuin
Parkeergelegenheid
Parkeerfaciliteiten OPENBAAR_PARKEREN, BETAALD_PARKEREN, PARKEERVERGUNNINGEN
Dak  
Soort dak bitumineuze dakbedekking
Overig  
Permanente bewoning
Bijzonderheden
Onderhoud binnen goed
Onderhoud buiten goed, actieve vve
Huidig gebruik Woonruimte
Huidige bestemming Woonruimte
Voorzieningen  
Voorzieningen MECHANISCHE_VENTILATIE, NATUURLIJKE_VENTILATIE
Kadastrale gegevens  
Gemeente 's-Gravenhage
Sectie R
Perceelnummer 13423
Oppervlakte m2
Eigendomssituatie ERFPACHT
Tabel Grafieken
2015 2016

Contact ons